2 Balconies | Corner Unit | Prime Location
Appartamento per Vendita In Manarat salone 2 , Isola di Sa'diyyat , Abu Dhabi

Letti: 2

Bagni: 4

Parcheggio: 1
10.38
2 Balconies | Corner Unit | Prime Location
2 Letti
4 Baths
1 Parking
1,856 sqft
Panoramica della proprietà
- Progetto Manarat living 2
- Sviluppatore Aldar Properties PJSC
- Comunità Isola di Sa'diyyat
- Tipo Appartamento
- Contrarre Vendita
- Proprietà Tenuta gratuita (tutte le nazionalità)
- Prezzo AED 4,150,000
- Rif. Unità NO. AP250869
- La zona 1,856 mq
- Prezzo al mq AED 2,236
- Letti 2
- Bagni 4
- Parcheggio 1
- Visualizzazione Visualizzazione della comunità
- Società Finanziatrice
- ROI
- Pagamento mensile AED 0 / 0 yrs
- Property Reg. # 202304298999
Descrizione
Madhmoun Sale Permit Number:
20250000602964
Unit Overview
Apartment for Rent in Manarat Living 2, Saadiyat Island, Abu Dhabi.
• Located in a well-established community, this 2-bedroom residence comes with 4 bathrooms, and an area of 1,855.59 sqft with 1 parking space.
Unit Features
• Living and Dining Room
• Open Kitchen
• Master Bedroom En Suite
• 2 Balconies
• Partial Canal View
• Maid Room
• Dressing
• Study Room
• Laundry Room
Amenities
• Swimming Pool
• Gymnasium
• Community Center
• Landscaped Gardens
• Children’s Play Area
Nearby Places
• Louvre Abu Dhabi
• Manarat Al Saadiyat
• Cranleigh Abu Dhabi
• Saadiyat Beach Club
• Soul Beach
About Vicinity
Manarat Living 2 on Saadiyat Island offers a refined residential lifestyle surrounded by Abu Dhabi’s cultural landmarks, pristine beaches, and wellness-focused amenities, creating a perfect balance of elegance and comfort.
About PSI Assets
PSI Assets Real Estates LLC is a licensed Real Estate company located in Waters Edge, Yas Island and Shams Boutik Mall, Al Reem Island and was established in 2021.
Part of PSI Group, a 15-year-old distinguished Real estate firm with a successful track record in the UAE.
We provide real estate solutions to serve:
Landlords
Buyers
Tenants
Investors
Developers
Property managers
Anyone looking to move to Abu Dhabi.
Reshaping the real estate market and far from your conventional real estate norm. Our promise to you is this:
YOU LIVE.
YOU INVEST.
WE MANAGE.
Reach out to our team at PSI Assets to get more details about this property or to schedule a viewing.
Call us on 600548200
Dettagli dell'unità
Questo 2 Camera da letto Appartamento In Manarat salone 2 ha le dimensioni di 1856 sq ft. Questa unità ha 2 Camera da letto, 4 bagni E 1 parcheggio.
IL Appartamento disponibile in Manarat salone 2 Prezzo per mq È 2235 AED.
Visualizzazione della comunità per questo 2 Camera da letto Appartamento In Manarat salone 2.
Numero di riferimento di Abu Dhabi per 2 Camera da letto Appartamento per Vendita In Manarat salone 2 È AP250869
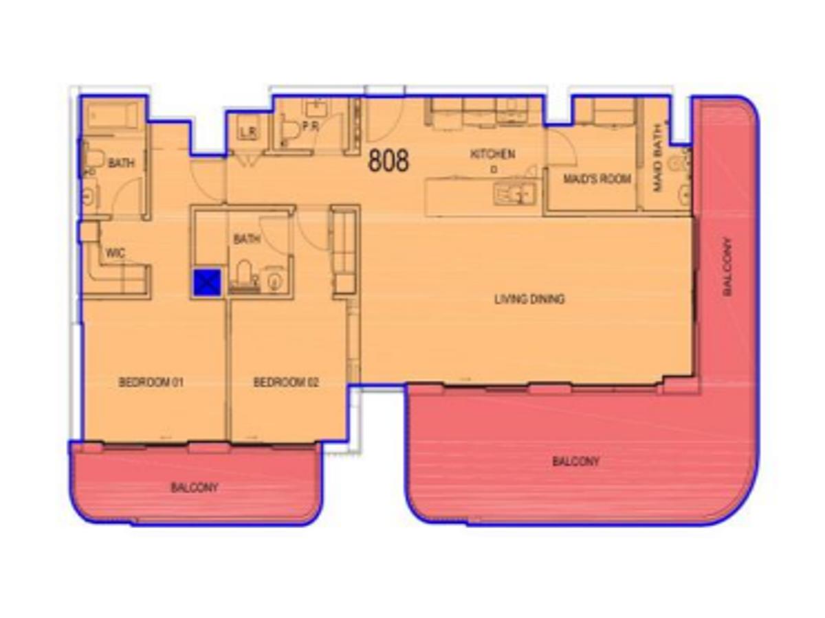
Dettagli per questo 2 Camera da letto In Manarat salone 2, comprese foto e tour virtuali.Planimetrie per questo Appartamento In Manarat salone 2
Trova la mappa della posizione per Manarat salone 2Miglior prezzo per Manarat salone 2 sono disponibili ora
Intermediario per il 2 Camera da letto Appartamento In Manarat salone 2 In Property Shop Investment
Trova unità simili per 2 Camera da letto Appartamento In Manarat salone 2
Trova progetti in
Attrezzature dell'unità
- Balcone
- Lobby
- Camera della cameriera
Calcolatore del mutuo
Unità disponibili in Manarat living 2
In vendita
Qual è il prezzo? 2 camera da letto Appartamento In Manarat salone 2 , Isola di Sa'diyyat ?
Il prezzo per 2 camera da letto Appartamento In Manarat salone 2 , Isola di Sa'diyyat È AED 4,150,000
Manarat salone 2 Panoramica
Manarat Living 2 is a residential complex located in the prestigious Saadiyat Island, offering a unique opportunity to own an apartment in the second phase of Aldar's urban development. With a focus on individuality and personalization, Manarat Living 2 encourages residents to live life on their own terms.
This exclusive residential complex features apartments that are designed to be a blank canvas, inviting residents to choose their own colors, add their personal flavor, and let their personality shine through in every detail. Whether you prefer a modern minimalistic style or a vibrant and energetic ambiance, the possibilities are endless.
The apartments in Manarat Living 2 boast impeccable craftsmanship and high-quality finishes, ensuring a luxurious and comfortable living experience. Spacious interiors are thoughtfully designed to maximize natural light and enhance the sense of space. Open-plan layouts seamlessly blend living, dining, and kitchen areas, creating a beautiful and functional living space.
Residents of Manarat Living 2 can also enjoy a wide range of amenities and facilities. Take a refreshing dip in the swimming pool, stay active at the state-of-the-art fitness center, or simply relax in the landscaped gardens. The complex also offers dedicated parking spaces, 24-hour security, and concierge services to cater to all your needs.
Situated in Saadiyat Island, residents of Manarat Living 2 can experience a truly unique lifestyle. Surrounded by pristine beaches, prestigious educational institutions, world-class museums, and international restaurants, there is always something exciting to discover.
Don't miss your chance to own an apartment in Manarat Living 2 and experience the ultimate in personalization and luxury living on Saadiyat Island.

Mezzi sociali
Nawayef Heights Type 6
Dubai roadshow in Abu Dhabi
Aldar Suhour X PSI